彰显人生格局
在璀璨的立面之下,sld设计工作室于72层云端之间,通过开阔格局与卓越材质融合,赋予室内空间深沉高贵的灵魂,敬呈城市精英人群。
客餐厅一体化结构,公共区域格局通透,宴赏宾客、家庭聚会......多样化的社交活动都能轻松承载。
12米面宽之下,俯瞰城市盛境,浮沉云畔之间;倾听清风低语,对望星月暖夜;自然风物汇聚,共同演绎浪漫的家居开篇。
深红色与浅棕色相随,从客厅行至餐厅,色彩自带的深沉与高贵也一路撒向空间之中。
理石地板自带光泽感,清晰倒映着室内光景,由环绕灯带和小型内嵌灯打造的无主灯设计,无疑尊重了这份光泽感,最大化保留天然材质的美感。
岛台后侧的9米展示柜由皮革。木材、古铜精心打造而成,多样的藏品整齐罗列,色彩与美感激烈碰撞形成无形的火花,似乎向人们展示着时间的轨迹与不同维度的阅历。
客厅与书房通过旋转门相隔,轻推门,前方的开阔映入眼帘,想要埋头静思,轻拉回门,便获得了刚刚好的独属世界。
有别于公区的高贵,卧室区域多了些“厌世”的味道,灯带镶嵌在裸色混凝土天花板,清冷的白色墙壁作了立体处理,木饰面床体与后侧墙面形成冷暖相衬的对比......一切都回溯本源,浮华、贵丽皆于表面散去,留下的只是纯粹不被沾染的本心与私密。
卧室采用弧形轮廓,柔和大气的设计旋律在室内跳跃、晕开,同时舒适顺遂的生活愿景也随之展开。
电动雾化玻璃将卧室和浴室分隔,模糊化二者之间的界限,又自成私密场域。
长辈房中窗前的长青松倒立生长,旺盛坚强的生命力与重力做了很好的平衡,象征着对年长者长命百岁、岁岁安康的美好祝愿。
儿童房中线条与色彩渐变更加明显,红色棕色被放置于线条和三角形的框架之中,床头柜拥有恰倒好处的“破坏效果”,错位、立体感、玄幻感编织起“无厘头”又“有道理”的童趣天地。
950㎡美学示范区
SLD受邀负责950㎡的「云玺首府」美学示范区的设计工作,其灵感来源于宋代名画《江山秋色图》,设计师完美复刻蜿蜒有力的笔锋和隽永秀丽的山水,以精妙的设计笔触,在立体空间中造艺。
园林的草木精石、潺潺流水演绎着永恒的静好之美,门厅对称结构、遵循宋朝国风礼序,赋予居者专属礼遇。
门厅内以现代材质演绎国风礼序,深棕色木饰墙面,错落的墙体布局,步步引导人们穿行时代,于古韵和今朝间流连。
入口处的装置品采用木石交合制成,不同的材质在色泽与边缘形态上完美契合,象征着宋朝文化与当代设计的无缝衔接。
墨黑色背景墙仿佛被雨水浸刷,白色的痕迹无序“落下”,赋予内部一丝纯净气息。
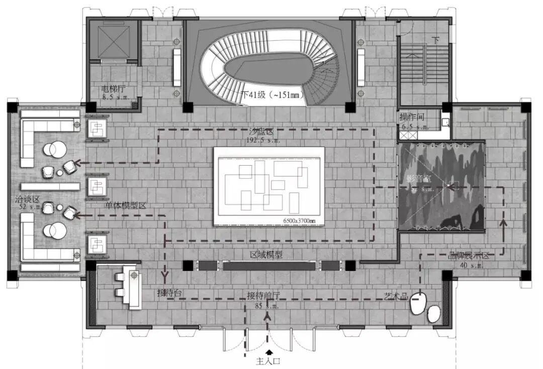
沙盘区采用现代设计语汇,打造出切割感——不规则形状的吊灯、沙盘底部的三角结构,引发强烈的视觉冲击。
会客区与水吧区相连,整个平面空间由理石、皮革、金属搭建而成,合理的区域分配,令这个容纳多人的场地并不拥挤。
墙壁充当水吧台杯子放置区,一旁格栅置物柜圈出会客区,收藏品围绕在来访者左右,彰显尊贵的地位。
古韵积淀、现代风尚、异域热忱......设计总会有不同的诠释,但对美的执着永远存在,sld的每一次作品呈现,不只是美学的花样铺陈,正因为色彩、线条、形态浮于原本中性的空间,我们才能从中感知并创造家的感情、文化与记忆。

